WDS Door 76 — Fortaleza inexpugnable con diseño refinado. Es el sistema de entrada más potente y cálido de WDS gama. Creado para quienes no están dispuestos a hacer concesiones entre la seguridad de una puerta de acero y el aislamiento térmico de una de plástico.
Por qué es la mejor elección para casa particular (Chalet):
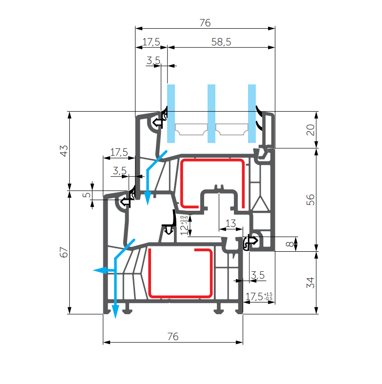
- Eficiencia energética a nivel de muro: Gracias al ancho de 76 mm y 5 cámaras, la puerta tiene un coeficiente de transmisión térmica Ud = 1,1 W/m²K. Es más cálida que el 90% de las puertas de entrada instaladas en España.
- Seguridad RC2/RC3: El potente refuerzo cerrado (2 mm) y la compatibilidad con herrajes antirrobo (Winkhaus/Roto) permiten que la puerta resista intentos de forzado.
- Diseño: La hoja está diseñada para instalar paneles decorativos gruesos (hasta 48 mm), que pueden imitar madera, hormigón o tener insertos de acero inoxidable.
Es una inversión en la tranquilidad de su familia y el estatus de su hogar.
Especificaciones Técnicas
Detalles
Puerta de entrada insignia. Máxima protección antirrobo y térmica para casas de campo.
Parámetros constructivos del sistema:
- Profundidad de montaje: 76 mm (base aumentada para máxima estabilidad).
- Construcción del perfil: 5 cámaras en marco y hoja (optimizado para aislamiento térmico).
- Sistema de sellado: Posibilidad de instalar circuito de junta central (MD), convirtiendo la puerta en una barrera fiable contra corrientes de aire y humedad.
- Refuerzo: Marco de acero cerrado especial de sección aumentada (espesor 2,0 mm), garantizando la estabilidad de la estructura incluso a temperaturas extremas.
- Umbral: Umbral bajo de aluminio con inserto térmico (rotura de puente térmico), eliminando el "puente de frío" y la congelación de la parte inferior del hueco.
- Estática: El mayor ancho del perfil de hoja permite fabricar puertas masivas para zonas de tránsito de alta frecuencia.
Opciones de acristalamiento y relleno:
- Espesor máximo de relleno: hasta 48 mm.
- Tipos de relleno: Acristalamientos de dos cámaras de bajo emisivo extra-gruesos, vidrio blindado (laminado) o paneles decorativos HPL con altos valores de aislamiento térmico.
Dimensiones máximas de la hoja:
- Ancho máximo de hoja: hasta 1100 mm (una hoja) / hasta 1900 mm (dos hojas con montante).
- Altura máxima de hoja: hasta 2400 mm.
- Peso de hoja: hasta 140-160 kg (gracias a bisagras reforzadas y profundidad del perfil).
Características certificadas:
- Coeficiente de resistencia térmica (Ro): hasta 0,95–1,0 m²°C/W (depende del relleno y presencia de junta central).
- Aislamiento acústico (Rw): hasta 40-42 dB.
- Resistencia al robo: Compatibilidad con herrajes clase RC2 y posibilidad de instalar cerraduras antirrobo con 5 puntos de presión.
- Permeabilidad al aire: Clase 4 (máximo nivel de estanqueidad).
Diseño
Diseño elegante y moderno

Hermeticidad
Triple sellado

Confort
Umbral hermético

WDS Door 76
Puerta de entrada insignia. Máxima protección antirrobo y térmica para casas de campo.
Más Ideas e Inspiración
Estos son algunos ejemplos de nuestro trabajo con el perfil WDS Door 76. Toda esta inspiración es para usted y solo para usted.
Estamos trabajando en mantener los datos actualizados. Contáctenos si necesita materiales actualizados.
Opciones de Financiación
Disfrute de su compra ahora y páguelo a plazos utilizando nuestros servicios de financiación.
Más detallesNo Olvide Añadir
Elementos adicionales y accesorios que harán su hogar aún más confortable
Mosquiteras
Manillas con Cerradura
Laminación
Elementos Decorativos
Compare con Perfiles Similares
Soluciones alternativas de otros fabricantes
WDS Door 60
WDS Door 70
WDS Door 76
Puerta Rehau Euro-Design 70
Puerta Rehau Brillant-Design 70
Puerta Rehau Synego
Disponible en Su Región
Trabajamos en toda España
Dejar una reseña
Reseñas de clientes
Descubra lo que la gente dice al respecto
Aún no hay reseñas. ¡Sea el primero!
FAQs
Preguntas Frecuentes sobre WDS Door 76
¿Es esta puerta mejor que una metálica (blindada)?
En aislamiento térmico — sí, mucho mejor. El metal se congela, y el PVC de 76 mm no. En seguridad: con herrajes RC2 nuestra puerta proporciona protección suficiente para una casa particular (donde los ladrones suelen entrar por las ventanas, no forzando la puerta principal).
¿Cuál es el tamaño máximo de la hoja?
Gracias al potente refuerzo, podemos fabricar una puerta de una hoja de hasta 1150 x 2350 mm. Para huecos más anchos ofrecemos opciones de dos hojas o fijos laterales.
¿Se puede hacer la puerta en color?
Sí, disponemos de más de 40 colores de laminado. Son especialmente populares las texturas "imitación madera" o aluminio mate, que hacen que la puerta sea indistinguible de las caras alternativas de madera.
¿Qué bisagras se instalan?
Usamos solo bisagras de puerta reforzadas (Dr.Hahn o equivalentes), cada una capaz de soportar hasta 140 kg. Normalmente se instalan 3 bisagras por hoja para máxima fiabilidad.


















