REHAU Eurodesign 70 es un sistema de perfiles de PVC de alta calidad para ventanas y puertas, que proporciona confort, eficiencia energética y seguridad. El sistema tiene una profundidad de instalación de 70 mm y tecnología de 5 cámaras, lo que permite un excelente aislamiento térmico y reduce los costos de calefacción. También se caracteriza por un alto aislamiento acústico, resistencia a la intemperie y durabilidad.
Los perfiles Eurodesign 70 son fáciles de limpiar gracias a su superficie lisa y proporcionan una mayor protección contra robos. El sistema ofrece una amplia gama de soluciones de diseño, incluidas varias formas, colores y opciones de hojas, lo que le permite encajar armoniosamente en cualquier estilo arquitectónico. Es una solución universal tanto para nuevas construcciones como para modernizaciones, combinando economía, calidad y estética.
Especificaciones Técnicas
Detalles
Sistema clásico de 5 cámaras con 70 mm de profundidad, fiable y económico para construcción estándar. Superficie HDF.
Parámetros de diseño del sistema:
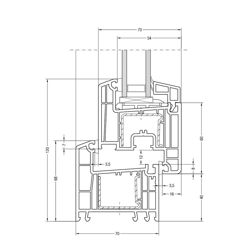
- Profundidad de instalación: 70 mm (profundidad del sistema para máxima retención de calor).
- Construcción del perfil: 5 cámaras (tanto en marco como en hoja) — estructura óptima para prevenir puentes térmicos.
- Diseño de superficie: Diseño clásico Softline con elegantes biseles de 15° en superficies frontales visibles.
- Superficie: HDF (High Definition Finishing) — superficie de alta calidad característica de Rehau: perfectamente lisa, con brillo brillante, extremadamente fácil de mantener.
- Sellado: Dos circuitos de sellado (superposición de juntas: 8 mm interior, 7 mm exterior). Material: EPDM o TPE, color gris o negro.
- Refuerzo: Perfil de acero galvanizado (espesor 1,5–2,0 mm) de acuerdo con los estándares Rehau para rigidez estructural.
Opciones de acristalamiento y relleno:
- Espesor máximo de relleno: hasta 41 mm.
- Tipos de unidades de vidrio: De una cámara (24 mm) y de doble cámara de ahorro energético (32 mm, 40 mm), incluyendo con vidrio laminado acústico.
- Montaje de unidad de vidrio: Junquillos con junta coextruida para compresión hermética.
Geometría y dimensiones (Ventana):
- Altura del paquete de perfiles (marco + hoja): Estándar 109 mm — proporciona mayor apertura de luz.
- Dimensiones máximas de hoja (Perfil blanco): Ancho hasta 1500 mm / Altura hasta 1500 mm (para ventanas) o hasta 2300 mm (para puertas de balcón).
- Dimensiones máximas de hoja (Perfil de color): Se recomienda reducir las dimensiones máximas en un 20% para evitar deformaciones por calentamiento.
Características certificadas (según DIN EN 14351-1):
- Aislamiento térmico del perfil (Uf): 1,3 W/m²K.
- Resistencia reducida a la transferencia de calor (R0): 0,77–0,80 m²°C/W (sin refuerzo puede alcanzar valores más altos).
- Aislamiento acústico (Rw): hasta 45 dB (con unidad de vidrio insonorizada especial instalada).
- Resistencia al robo: hasta clase RC2 (ENV 1627) con herrajes apropiados.
- Permeabilidad al aire: Clase 4 (la más alta según EN 12207).
- Estanqueidad al agua: Clase 9A (según EN 12208, protección contra lluvia).
- Vida útil: Más de 40-50 años condicionales de operación.
A través de los años
Superficie HDF

Cuidando de ti
Más luz

Confort en el hogar
Ventanas cálidas y silenciosas

Herrajes
Comodidad y durabilidad

Resistencia y construcción
Fiabilidad sin compromisos

Microventilación
Aire fresco sin corrientes

Rehau Euro-design 70
Sistema clásico de 5 cámaras con 70 mm de profundidad, fiable y económico para construcción estándar. Superficie HDF.
Más Ideas e Inspiración
Estos son algunos ejemplos de nuestro trabajo con el perfil Rehau Euro-design 70. Toda esta inspiración es para usted y solo para usted.
Estamos trabajando en mantener los datos actualizados. Contáctenos si necesita materiales actualizados.
Opciones de Financiación
Disfrute de su compra ahora y páguelo a plazos utilizando nuestros servicios de financiación.
Más detallesNo Olvide Añadir
Elementos adicionales y accesorios que harán su hogar aún más confortable
Mosquiteras
Manillas con Cerradura
Laminación
Elementos Decorativos
Compare con Perfiles Similares
Soluciones alternativas de otros fabricantes
Rehau Synego
Rehau Brillant-Design 70
Rehau Brillant-Design 80
Kömmerling EuroFutur Elegance
Kömmerling Xtrem 76 AD
Kömmerling Xtrem 76 MD
Disponible en Su Región
Trabajamos en toda España
Dejar una reseña
Reseñas de clientes
Descubra lo que la gente dice al respecto
Aún no hay reseñas. ¡Sea el primero!
FAQs
Preguntas Frecuentes sobre Rehau Euro-design 70
¿En qué se diferencia Euro-design 70 de otros sistemas REHAU?
Es un sistema clásico de 5 cámaras con una profundidad de instalación de 70 mm. Proporciona un rendimiento equilibrado de calor/ruido a un precio asequible y es adecuado para nuevas construcciones y renovaciones.
¿Cuál es el espesor máximo de unidad de vidrio adecuado?
Hasta 40 mm - esto permite el uso de unidades de vidrio doble y triple de ahorro de energía con espaciador cálido.
¿Es adecuado para una calle ruidosa?
Sí, el aislamiento acústico básico del sistema ≈43 dB (Rw) con la configuración correcta de la unidad de vidrio, que es suficiente para la mayoría de las condiciones urbanas.
¿Se necesita refuerzo de acero?
Sí, los marcos y hojas de Euro-design 70 utilizan refuerzo de acero para la rigidez, especialmente para tamaños grandes y/o laminación.
¿Qué opciones de diseño están disponibles?
Superficie HDF lisa, varias formas de junquillo, laminaciones de madera y RAL, manijas decorativas y herrajes ocultos bajo pedido.
¿Qué tamaños de hoja son aceptables?
Límites recomendados - hasta ~1,3-1,4 m de ancho para hojas oscilobatientes (dependen de herrajes/unidad de vidrio); las dimensiones exactas se acuerdan durante el cálculo.
¿Hay opciones de seguridad y ventilación?
Disponibles configuraciones anti-robo hasta RC2, cerraduras para niños, microventilación, ventilación por ranura y escalonada, válvulas de suministro.
¿En qué se diferencia Euro-design 70 de Brillant-Design 70?
Ambos sistemas son de 70 mm y 5 cámaras; Brillant-Design 70 - con énfasis en estética premium y diseño ampliado, Euro-design 70 - en practicidad y precio.


























