Rehau Synego Slide rompe el estereotipo de que las puertas correderas siempre significan "corrientes de aire". Utiliza un mecanismo de cierre innovador: al girar la manilla, la hoja no solo se detiene—se desplaza perpendicularmente al marco y presiona firmemente contra las juntas de goma en todo el perímetro.
Silencio y Calor (Nivel Geneo)
Gracias al perfil de 7 cámaras (profundidad de 80mm) y la capacidad de instalar unidades de vidrio gruesas (hasta 51mm), este sistema iguala a las ventanas abatibles premium en aislamiento térmico y acústico. Es la elección ideal para:
- Salones con acceso a terraza, donde mantener el calor en invierno y el fresco en verano importa;
- Hogares cerca de carreteras transitadas (reduce hasta 43 dB de sonido);
- Reemplazar viejos e incómodos portales PSK que son difíciles de manejar.
Especificaciones Técnicas
Detalles
Sistema corredera hermético con mecanismo de presión. Silencio y facilidad en un solo movimiento.
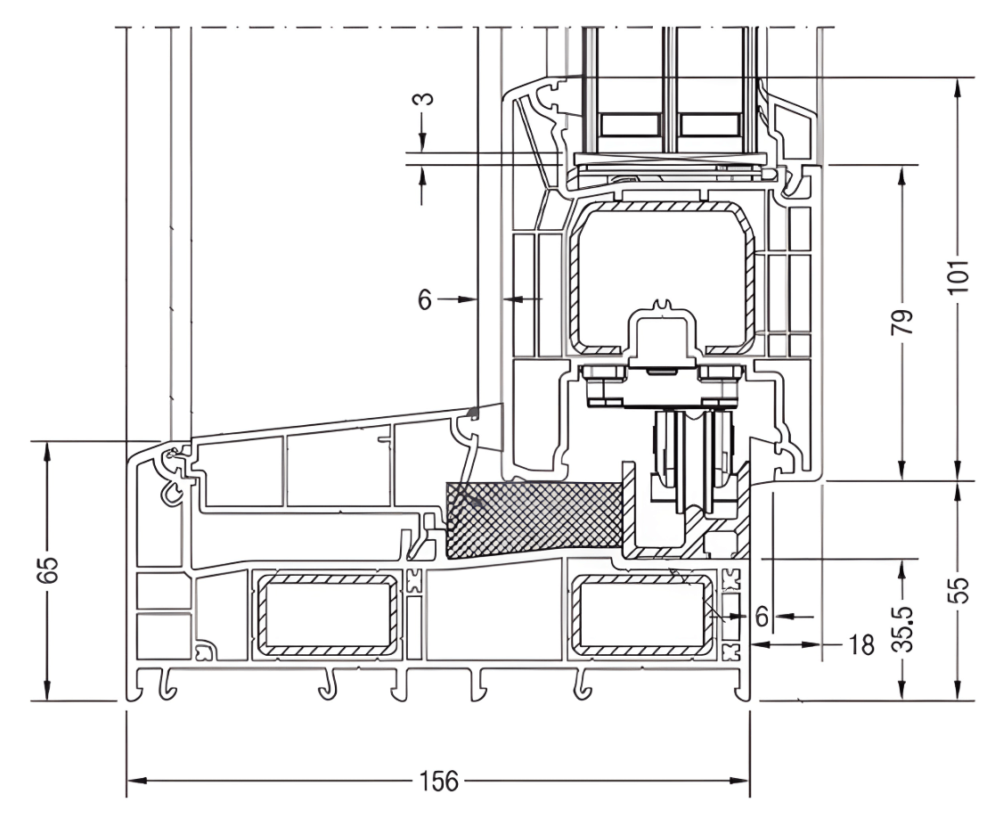
Parámetros constructivos del sistema:
- Profundidad de montaje: 156 mm (marco) / 80 mm (hoja).
- Tipo de apertura: Mecanismo corredera innovador (Smarter Sliding) — al cerrar, la hoja presiona firmemente contra el marco en todo el perímetro, asegurando máxima hermeticidad.
- Diseño del perfil: 7 cámaras (marco) / 6 cámaras (hoja) — el estándar más alto de ahorro energético.
- Superficie: HDF (High Definition Finishing) — perfectamente lisa, brillante, resistente a la decoloración y fácil de limpiar.
- Sellado: Sellado de junta continuo innovador sin roturas en esquinas (a diferencia de sistemas de cepillo), garantizando cero infiltración de aire.
Opciones de acristalamiento y relleno:
- Espesor máximo de relleno: hasta 51 mm.
- Tipos de relleno: Unidades de vidrio pesadas de doble cámara energéticamente eficientes o multifuncionales, así como acristalamiento laminado acústico.
- Junquillo: Amplia selección de junquillos (rectos, biselados, decorativos) para cualquier diseño de interior.
Dimensiones máximas de estructura:
- Tamaño máximo de estructura: hasta 4000 mm × 2600 mm (color blanco).
- Tamaño máximo de hoja: Anchura hasta 2000 mm / Altura hasta 2500 mm.
- Peso de hoja: hasta 200 kg (operación fácil con una mano gracias a herrajes especializados).
Especificaciones certificadas:
- Aislamiento térmico del perfil (Uf): hasta 1,3 W/m²K.
- Coeficiente de resistencia térmica (Ro): hasta 1,0 m²°C/W (con unidad de vidrio apropiada).
- Aislamiento acústico (Rw): hasta 43 dB (protección contra ruido intenso de la calle).
- Permeabilidad al aire: Clase 4 (DIN EN 12207).
- Estanqueidad al agua: hasta Clase 9A (DIN EN 12208).
- Resistencia al robo: hasta Clase RC2.
Sin corrientes
Mecanismo de presión

Ligero como una pluma
Operación sin esfuerzo

Calor retenido
Excelente aislamiento

Rehau Synego Slide
Sistema corredera hermético con mecanismo de presión. Silencio y facilidad en un solo movimiento.
Más Ideas e Inspiración
Estos son algunos ejemplos de nuestro trabajo con el perfil Rehau Synego Slide. Toda esta inspiración es para usted y solo para usted.
Estamos trabajando en mantener los datos actualizados. Contáctenos si necesita materiales actualizados.
Opciones de Financiación
Disfrute de su compra ahora y páguelo a plazos utilizando nuestros servicios de financiación.
Más detallesNo Olvide Añadir
Elementos adicionales y accesorios que harán su hogar aún más confortable
Mosquiteras
Manillas con Cerradura
Laminación
Elementos Decorativos
Compare con Perfiles Similares
Soluciones alternativas de otros fabricantes
Rehau High-Design Slide
Rehau Panorama Swing
Rehau Geneo HST
Kömmerling PremiLine
Kömmerling PremiSlide 76
Kömmerling PremiDoor 76
Dejar una reseña
Reseñas de clientes
Descubra lo que la gente dice al respecto
Aún no hay reseñas. ¡Sea el primero!
FAQs
Preguntas Frecuentes sobre Rehau Synego Slide
¿Cuál es la diferencia con los correderos baratos (High-Design)?
La diferencia es abismal. En los sistemas baratos (High-Design) se usan cepillos por donde pasa el aire. En Synego Slide se usa un contorno de sellado de goma continuo (como en un refrigerador). Es una pared cálida de verdad, no solo una barrera contra la lluvia.
¿Es mejor que las puertas oscilobatientes (PSK)?
Sin duda. Los viejos portales PSK (que se inclinan y deslizan como la puerta de un autobús) son difíciles de manejar, a menudo se estropean y tienen umbrales altos. Synego Slide no tiene estos problemas: no se inclina, simplemente se desliza, y es mucho más difícil dañar el mecanismo.
¿Qué tan difícil es forzarla?
Gracias al mecanismo de presión, la hoja no se puede forzar con una palanca como una ventana normal. La clase de resistencia al robo alcanza RC2. Es un obstáculo serio para un ladrón, especialmente combinado con vidrio laminado antivandálico.
¿De qué tamaño puede ser la puerta?
Recomendamos hojas de hasta 1,5–1,6 metros de ancho y hasta 2,5 metros de alto. Si la apertura es más ancha de 4 metros, es mejor considerar el sistema Geneo HST, ya que la herraje de Synego tiene límites de peso del vidrio.
¿El umbral quedará al nivel del suelo?
No, hay un umbral técnico (marco) sobre el que hay que pasar (altura de unos 6-7 cm). Si necesita un umbral "cero" absolutamente plano para silla de ruedas—necesita el sistema Geneo HST, pero cuesta significativamente más.
¿Se requiere ajuste?
Mucho menos frecuentemente que para los portales PSK. El mecanismo Synego Slide es autocentrante. Lo principal es mantener el carril inferior limpio de escombros de construcción y arena.




















