Schüco ASE 80.HI es la cima tecnologica de la gama de sistemas correderos Schüco. Gracias a la mayor profundidad de la hoja (80 mm) y a inserciones especiales de material espumado en la zona de rotura termica, este sistema proporciona un aislamiento termico a nivel del estandar «Passivhaus». Esto permite crear paredes completamente acristaladas en chalets incluso en regiones del norte sin riesgo de frio ni corrientes de aire.
Al igual que en la serie 60, aqui estan disponibles las soluciones de diseño DesignLine con anchura minima de junta entre hojas (40 mm) y herrajes completamente ocultos, lo que hace que la construccion maciza y calida parezca visualmente ligera y aerea.
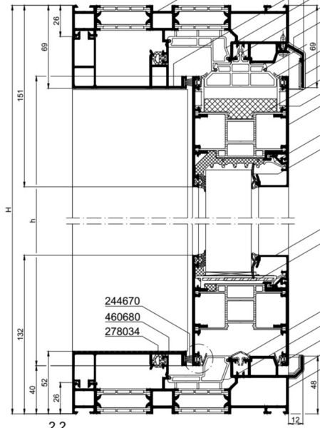
Especificaciones Técnicas
Detalles
Estetica de casa pasiva. Sistema corredera de alto aislamiento con profundidad de hoja de 80 mm para maximo ahorro energetico.
Parametros constructivos del sistema:
- Profundidad de montaje del marco: 180 mm (para 2 carriles).
- Profundidad de montaje de la hoja: 80 mm.
- Tecnologia HI (High Insulation): En el interior de la zona central de rotura termica se instalan rellenos de espuma especiales que bloquean la conveccion del aire.
- Diseño: Disponible version DesignLine con junquillo estrecho de 40 mm y umbral a nivel del suelo para un entorno sin barreras.
- Herrajes: Ocultos, con soporte SmartClose (cierre suave) y refuerzo mecanico de la manilla (elevacion facil de hojas pesadas).
Posibilidades de acristalamiento:
- Espesor maximo de relleno: hasta 60 mm.
- Tipos de acristalamiento: Permite instalar unidades de vidrio aislante de doble camara con vidrio laminado y vidrios gruesos para maximo aislamiento acustico y seguridad.
Caracteristicas certificadas:
- Aislamiento termico (Uw): hasta 0,80 W/m²K (estandar de casa pasiva).
- Aislamiento acustico (Rw): hasta 43 dB.
- Resistencia antirrobo: hasta clase RC2.
- Permeabilidad al aire: Clase 4.
- Peso maximo: hasta 600 kg (TipTronic).
Maximo calor
Tecnologia HI

Espacio unico
Umbral sin barreras

Escala
Hojas pesadas

Schüco ASE 80.HI
Estetica de casa pasiva. Sistema corredera de alto aislamiento con profundidad de hoja de 80 mm para maximo ahorro energetico.
Más Ideas e Inspiración
Estos son algunos ejemplos de nuestro trabajo con el perfil Schüco ASE 80.HI. Toda esta inspiración es para usted y solo para usted.
Estamos trabajando en mantener los datos actualizados. Contáctenos si necesita materiales actualizados.
Opciones de Financiación
Disfrute de su compra ahora y páguelo a plazos utilizando nuestros servicios de financiación.
Más detallesNo Olvide Añadir
Elementos adicionales y accesorios que harán su hogar aún más confortable
Mosquiteras
Manillas con Cerradura
Laminación
Elementos Decorativos
Compare con Perfiles Similares
Soluciones alternativas de otros fabricantes
Schüco ASE 60
Schüco ASE 67 PD
Cortizo COR 4200
Cortizo 4900 Corredera
Cortizo COR Vision
Dejar una reseña
Reseñas de clientes
Descubra lo que la gente dice al respecto
Aún no hay reseñas. ¡Sea el primero!
FAQs
Preguntas Frecuentes sobre Schüco ASE 80.HI
¿Cual es la principal diferencia con el ASE 60?
La profundidad del perfil (80 mm frente a 60 mm) y la presencia de inserciones de espuma. El ASE 80.HI es significativamente mas calido y permite instalar acristalamientos mas gruesos y pesados (hasta 60 mm).
¿Es adecuado para una casa pasiva?
Si, cuando se utiliza un acristalamiento de alta eficiencia energetica, el sistema ASE 80.HI cumple con los estrictos criterios del Passive House Institute.
¿Se congelara el umbral?
No, el umbral tiene un diseño complejo con rotura termica y materiales compuestos, lo que evita la congelacion incluso con instalacion a nivel del suelo.
¿Como manejar una hoja enorme?
En modo manual, los amplificadores de resorte en la manilla ayudan reduciendo el esfuerzo de elevacion. Para maximo confort, se recomienda el motor oculto TipTronic (apertura con boton/smartphone).
¿Se puede hacer una esquina completamente acristalada?
Si, el sistema permite realizar una esquina de apertura a 90° sin montante fijo. Al abrir las hojas, la esquina de la casa queda completamente libre.
¿Hay proteccion contra insectos?
Schüco ofrece mosquiteras integradas y plisadas que pueden incorporarse en la estructura del marco sin afectar el aspecto estetico.















