Cortizo Millennium Pivot es más que una puerta, es una declaración arquitectónica. El sistema rompe los estereotipos habituales sobre cómo debe ser la entrada a una casa. En lugar de las bisagras clásicas, aquí se utiliza un mecanismo de rotación sobre un eje vertical desplazado del borde de la hoja. Esta solución técnica permite redistribuir el peso y crear construcciones verdaderamente gigantescas de hasta 2,1 metros de ancho y hasta 3 metros de altura, que además se manejan con la ligereza de una pluma.
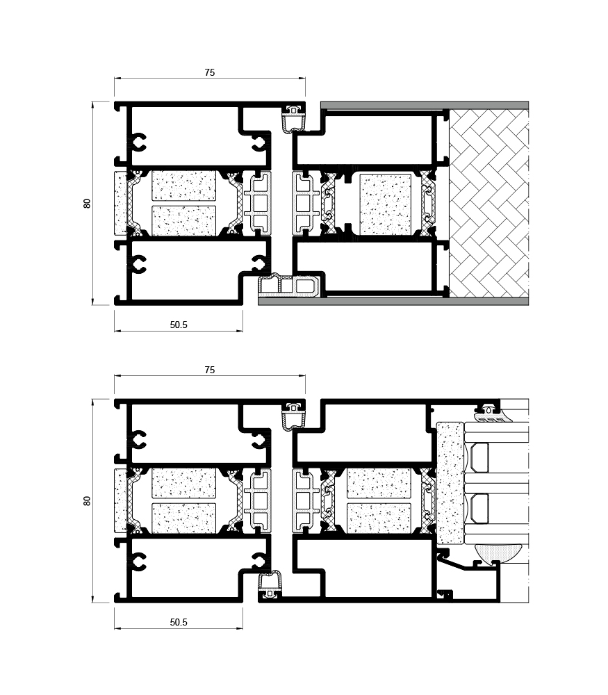
La base del sistema es un perfil potente con una profundidad de montaje de 80 mm y altos valores de aislamiento térmico, lo que la hace ideal para residencias privadas de lujo. El diseño de Millennium Pivot es un triunfo del minimalismo: posibilidad de usar manillas ocultas con iluminación LED, acabados con paneles de piedra, cerámica o aluminio, y coplanaridad total (hoja a ras del marco). Es la elección para quienes quieren impresionar a sus invitados antes incluso de que entren.
Especificaciones Técnicas
Detalles
Puerta pivotante de vanguardia sobre eje desplazado. Permite crear entradas de dimensiones monumentales (hasta 3 metros de altura) con una suavidad de apertura única.
Parámetros constructivos del sistema:
- Profundidad de montaje: 80 mm.
- Tipo de apertura: Pivotante sobre eje vertical.
- Espesor de las paredes del perfil: 2,0 mm.
- Aislamiento térmico: Puentes térmicos de 24 mm que proporcionan un alto nivel de ahorro energético.
- Mecanismo: Eje de rotación regulable con posibilidad de ajustar la velocidad de cierre y freno hidráulico.
- Umbral: Umbral automático retráctil (oculto) para máxima hermeticidad sin barrera física en el suelo.
Posibilidades de relleno:
- Espesor máximo: relleno con panel o vidrio.
- Diseño: Manillas integradas (empotradas), iluminación LED, posibilidad de revestimiento con diversos materiales.
Dimensiones máximas y seguridad:
- Dimensiones máximas de la hoja: Ancho hasta 2100 mm, Altura hasta 3000 mm.
- Peso de la hoja: hasta 250 kg.
- Cierre: Cerraduras multipunto automáticas con accionamiento eléctrico.
Características certificadas:
- Aislamiento térmico de la puerta (Ud): desde 0,79 W/m²K.
- Estanqueidad al agua: Clase 7A.
- Permeabilidad al aire: Clase 4.
- Resistencia al viento: Clase C5.
- Aislamiento acústico: hasta 38 dB.
Escala
Dimensiones monumentales

Estilo
Manilla integrada oculta

Mecánica
Facilidad de manejo

Cortizo Millennium Pivot
Puerta pivotante de vanguardia sobre eje desplazado. Permite crear entradas de dimensiones monumentales (hasta 3 metros de altura) con una suavidad de apertura única.
Más Ideas e Inspiración
Estos son algunos ejemplos de nuestro trabajo con el perfil Cortizo Millennium Pivot. Toda esta inspiración es para usted y solo para usted.
Estamos trabajando en mantener los datos actualizados. Contáctenos si necesita materiales actualizados.
Opciones de Financiación
Disfrute de su compra ahora y páguelo a plazos utilizando nuestros servicios de financiación.
Más detallesNo Olvide Añadir
Elementos adicionales y accesorios que harán su hogar aún más confortable
Mosquiteras
Manillas con Cerradura
Laminación
Elementos Decorativos
Compare con Perfiles Similares
Soluciones alternativas de otros fabricantes
Cortizo Millennium Plus 70
Cortizo Millennium Plus 80
Schüco AD UP 75
Dejar una reseña
Reseñas de clientes
Descubra lo que la gente dice al respecto
Aún no hay reseñas. ¡Sea el primero!
FAQs
Preguntas Frecuentes sobre Cortizo Millennium Pivot
¿Cuál es la principal diferencia entre Pivot y una puerta normal?
La principal diferencia es el eje de rotación. Una puerta normal cuelga de bisagras en el lateral, mientras que Pivot gira sobre pivotes en el suelo y el techo, desplazados del borde. Esto cambia la trayectoria del movimiento: parte de la hoja "entra" hacia dentro y la parte principal hacia fuera, creando un paso amplio y espectacular.
¿Cómo se cierra esta puerta?
Millennium Pivot normalmente está equipada con cerraduras electromecánicas automáticas. Al cerrar la puerta, los pestillos se extienden automáticamente. Se puede abrir con llave, código, tarjeta, huella dactilar o mediante una aplicación en el smartphone.
¿No hay corrientes de aire con esta puerta?
Dado que las puertas Pivot no tienen un umbral clásico con burlete (para no interferir con la rotación), la hermeticidad se garantiza mediante dos umbrales automáticos retráctiles (guillotinas). Al cerrar la puerta, descienden hacia abajo sellando firmemente el hueco entre el suelo y la hoja.
¿Cuánto espacio "ocupa" la puerta al abrir?
Hay que tener en cuenta que al abrir, la parte trasera de la hoja (la que está detrás del eje de rotación) gira hacia el interior de la habitación o del hueco. Normalmente el eje está desplazado 1/3 o 1/4 del ancho. Este espacio debe estar libre de muebles o alfombras.
¿Es segura esta construcción?
Absolutamente. El perfil de 80 mm de espesor, las láminas de aluminio del revestimiento y el potente armazón hacen que la hoja sea muy rígida. Combinada con una cerradura multipunto, esta puerta representa una seria barrera para los intrusos.
¿Es difícil instalar esta puerta?
La instalación de una puerta Pivot es más compleja que la estándar y requiere alta cualificación. Se presta especial atención a la preparación del suelo, ya que el soporte inferior soporta todo el peso de la construcción (hasta 250 kg) y debe estar perfectamente anclado a la base de hormigón.

















