Cortizo Millennium Plus 80 es la respuesta a las crecientes exigencias de eficiencia energética de la vivienda moderna. Si el modelo Plus 70 es una excelente puerta cálida, Plus 80 es una barrera sin compromisos contra el frío. El aumento de la profundidad de montaje a 80 mm permitió integrar puentes térmicos anchos (34 mm) e insertos de espuma especiales. El resultado es impresionante: el coeficiente de transmisión térmica de la puerta es de solo 0,8 W/m²K, lo que permite instalarla en casas pasivas certificadas.
El diseño sigue siendo de alto nivel: la hoja y el marco forman un solo plano (coplanaridad), acentuando el minimalismo moderno de la fachada. La potencia de este sistema permite utilizar rellenos de hasta 64 mm de espesor, lo que significa que puede instalar un laminado blindado o un panel de diseño grueso con máximo aislamiento. Es una puerta para quienes construyen una casa para siempre y no están dispuestos a pagar por calentar la calle.
Especificaciones Técnicas
Detalles
Puerta de entrada de nivel Passivhaus. Sistema insignia con profundidad de 80 mm y rotura de puente térmico aumentada. Combina un diseño coplanar refinado con un aislamiento térmico comparable a las mejores ventanas.
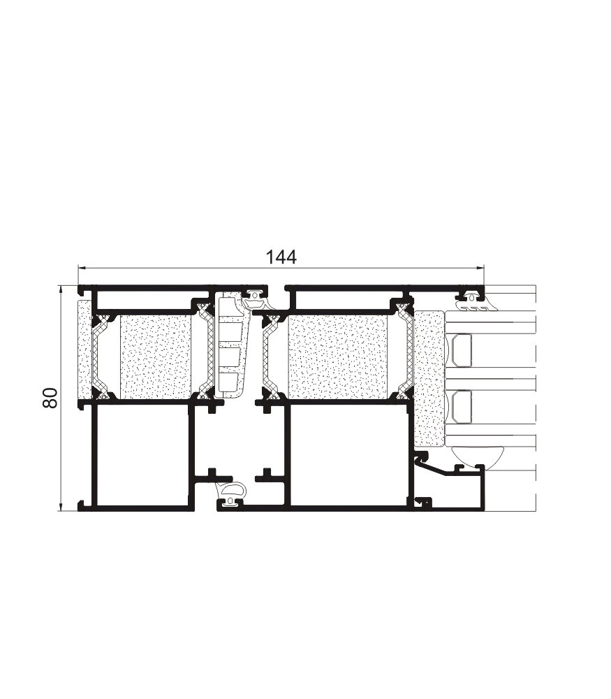
Parámetros constructivos del sistema:
- Profundidad de montaje: 80 mm.
- Tipo de sistema: Coplanar (hoja a ras del marco).
- Aislamiento térmico: Tecnología RPT con puentes térmicos de poliamida de 34 mm de ancho e insertos de espuma (opcional).
- Espesor de las paredes: 2,0 mm.
- Bisagras: Superpuestas reforzadas (de 2 o 3 hojas) o bisagras completamente ocultas.
- Sellado: 3 contornos de sellado EPDM para hermeticidad absoluta.
Posibilidades de relleno:
- Espesor máximo: hasta 64 mm.
- Tipos: Acristalamientos de triple cámara, paneles sándwich, paneles de aluminio.
Dimensiones máximas y seguridad:
- Dimensiones máximas de la hoja: Ancho hasta 1800 mm, Altura hasta 3000 mm.
- Peso de la hoja: hasta 220 kg.
- Resistencia al robo: Certificada clase RC3 (alta protección).
Características certificadas:
- Aislamiento térmico de la puerta (Ud): desde 0,8 W/m²K.
- Estanqueidad al agua: Clase 5A.
- Permeabilidad al aire: Clase 4.
- Resistencia al viento: Clase C5.
- Aislamiento acústico: hasta 40 dB.
Passivhaus
Referencia en aislamiento térmico

Potencia
Relleno hasta 64 mm

Diseño
Bisagras ocultas

Cortizo Millennium Plus 80
Puerta de entrada de nivel Passivhaus. Sistema insignia con profundidad de 80 mm y rotura de puente térmico aumentada. Combina un diseño coplanar refinado con un aislamiento térmico comparable a las mejores ventanas.
Más Ideas e Inspiración
Estos son algunos ejemplos de nuestro trabajo con el perfil Cortizo Millennium Plus 80. Toda esta inspiración es para usted y solo para usted.
Estamos trabajando en mantener los datos actualizados. Contáctenos si necesita materiales actualizados.
Opciones de Financiación
Disfrute de su compra ahora y páguelo a plazos utilizando nuestros servicios de financiación.
Más detallesNo Olvide Añadir
Elementos adicionales y accesorios que harán su hogar aún más confortable
Mosquiteras
Manillas con Cerradura
Laminación
Elementos Decorativos
Compare con Perfiles Similares
Soluciones alternativas de otros fabricantes
Cortizo Millennium Plus 70
Cortizo Millennium Pivot
Schüco AD UP 75
Dejar una reseña
Reseñas de clientes
Descubra lo que la gente dice al respecto
Aún no hay reseñas. ¡Sea el primero!
FAQs
Preguntas Frecuentes sobre Cortizo Millennium Plus 80
¿Merece la pena pagar más por 80 mm en lugar de 70 mm?
Si está construyendo una casa energéticamente eficiente o vive en una zona ventosa/ruidosa, definitivamente sí. La diferencia en aislamiento térmico es notable, y la posibilidad de instalar un acristalamiento/panel más grueso mejora el aislamiento acústico. Para un piso normal en clima cálido, la serie 70 puede ser suficiente.
¿Qué tan protegida está esta puerta contra ladrones?
Millennium Plus 80 tiene certificado de resistencia al robo RC3 (con el equipamiento adecuado). Esto significa que la puerta es capaz de resistir a un ladrón experimentado con palanca y herramientas manuales durante un tiempo considerable.
¿Es adecuada para un chalet sin vestíbulo?
Sí, esta es una de las principales ventajas del sistema. El alto aislamiento térmico del perfil y del umbral minimiza los riesgos de congelación, por lo que la puerta se puede instalar directamente en el límite "exterior-interior" (siempre que haya un tejadillo contra la lluvia directa).
¿Se puede abrir la puerta desde el teléfono?
Por supuesto. El sistema es compatible con cualquier cerradura electrónica moderna, escáneres de huellas dactilares y sistemas de domótica. Puede configurar la apertura automática cuando se aproxime o abrir la puerta al repartidor de forma remota.
¿Se puede hacer la puerta "imitación madera"?
Sí, el aluminio se puede recubrir mediante sublimación, dándole la textura de maderas nobles (roble, nogal, cerezo). Además, a diferencia de la madera real, esta puerta no se deformará por la humedad y el barniz no se pelará con el sol.
¿No se descolgará una puerta tan pesada?
Cortizo utiliza bisagras especiales de 3 secciones diseñadas para cargas pesadas (hasta 220 kg). Con una instalación correcta y ajustes periódicos (una vez cada 1-2 años), la puerta funcionará suavemente durante décadas.

















