REHAU Geneo PHZ es un sistema de perfiles de PVC mejorado y de alta tecnología para ventanas, diseñado específicamente para edificios con los más altos requisitos de eficiencia energética, en particular para casas pasivas. Se basa en el innovador sistema Geneo y utiliza el material de alta tecnología RAU-FIPRO X, que proporciona una resistencia y estabilidad excepcionales sin necesidad de refuerzo de acero, lo cual es crítico para lograr el máximo aislamiento térmico. Gracias a una profundidad de instalación de 86 mm y construcción multicámara optimizada, el sistema Geneo PHZ logra indicadores de aislamiento térmico sobresalientes que corresponden a los estándares de casa pasiva.
Las ventanas fabricadas con el perfil Geneo PHZ proporcionan un excelente aislamiento acústico, protegiendo eficazmente la habitación del ruido externo, y ofrecen un alto nivel de protección contra robos. La ausencia de refuerzo de acero hace que el perfil sea más ligero, lo que simplifica la instalación y manipulación. La superficie lisa de los perfiles facilita el mantenimiento. REHAU Geneo PHZ proporciona amplias oportunidades para el diseño arquitectónico gracias a la variedad de formas, colores y acabados, permitiendo la creación de soluciones elegantes y funcionales que cumplen completamente con los estrictos requisitos de la construcción moderna de eficiencia energética.
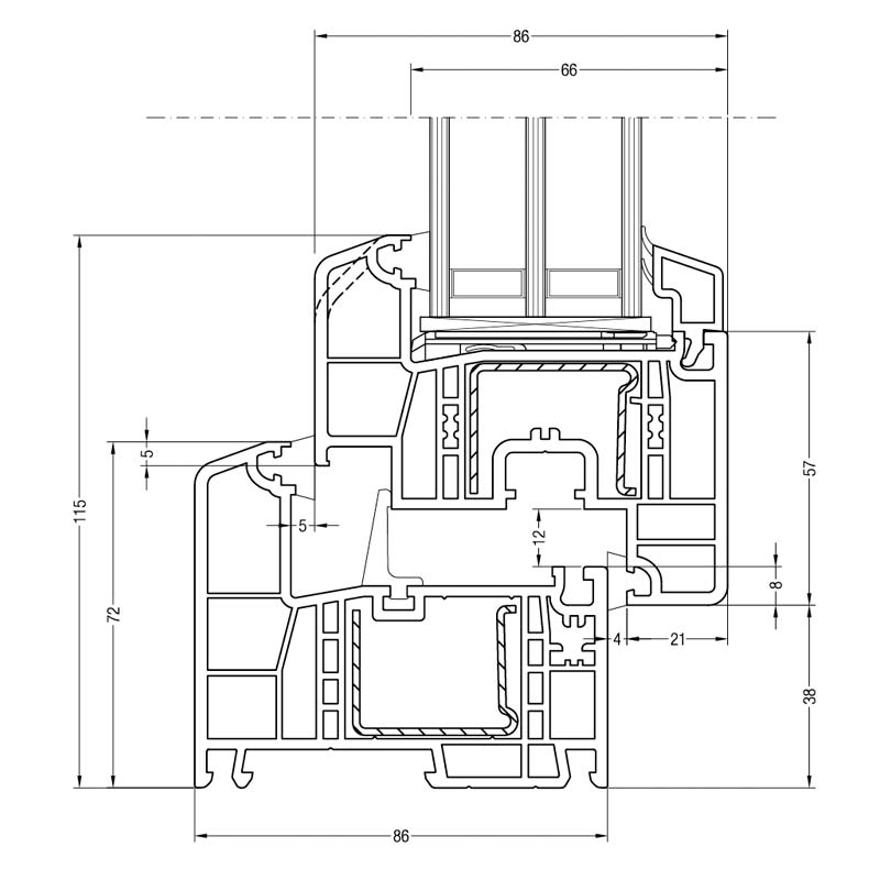
Especificaciones Técnicas
Detalles
Versión especializada de Geneo con módulos térmicos, certificada para casas pasivas, con aislamiento térmico récord.
Características de diseño (Estándar Casa Pasiva):
- Profundidad de instalación: 86 mm.
- Tecnología de aislamiento: La característica principal de la versión PHZ es el uso de módulos térmicos (insertos especiales de espuma) dentro de las cámaras funcionales del perfil. Esto bloquea completamente la convección de aire dentro del marco.
- Material del perfil: RAU-FIPRO (compuesto de fibra de vidrio). Elimina la necesidad de refuerzo de acero, eliminando los "puentes térmicos" inherentes a las ventanas convencionales.
- Sistema de sellado: 3 circuitos (MD). La versión PHZ utiliza un circuito de sellado medio mejorado para garantizar la hermeticidad absoluta requerida para casas pasivas.
- Superficie: HDF (High Definition Finishing) — superficie lisa y repelente de suciedad.
Opciones de acristalamiento:
- Espesor máximo de unidad de vidrio: hasta 53 mm.
- Requisito obligatorio: Para cumplir con el estándar Passivhaus, el sistema está equipado con unidades de vidrio de doble cámara con gas inerte (argón o criptón) y marcos espaciadores cálidos.
- Pegado de unidad de vidrio: La tecnología de pegar el acristalamiento en la hoja aumenta la rigidez estructural y permite crear hojas grandes sin metal en el interior.
Características certificadas (Certificado Passivhaus Institut Darmstadt):
- Aislamiento térmico del perfil (Uf): 0,79 W/m²K. Logrado mediante la combinación del material RAU-FIPRO y módulos térmicos.
- Aislamiento térmico de ventana (Uw): hasta 0,66 W/m²K (con instalación de unidad de vidrio Ug = 0,5 W/m²K). Este valor cumple con los estándares europeos más estrictos para casas pasivas.
- Aislamiento acústico (Rw,p): hasta 47 dB.
- Resistencia al robo: hasta clase RC3.
- Permeabilidad al aire: Clase 4.
- Estanqueidad al agua: Clase 9A.
Cuidado fácil, belleza duradera.
Superficie que brilla

Deja entrar el sol en cada rincón.
Ventana llena de luz

Calidez y silencio - tu elección.
Oasis del hogar

Fiabilidad en la que puedes confiar.
Calma y protección

Ligereza y estabilidad en uno.
Fortaleza sin acero

Siempre aire fresco, sin preocupaciones.
Respira libremente

Rehau Geneo PHZ
Versión especializada de Geneo con módulos térmicos, certificada para casas pasivas, con aislamiento térmico récord.
Más Ideas e Inspiración
Estos son algunos ejemplos de nuestro trabajo con el perfil Rehau Geneo PHZ. Toda esta inspiración es para usted y solo para usted.
Estamos trabajando en mantener los datos actualizados. Contáctenos si necesita materiales actualizados.
Opciones de Financiación
Disfrute de su compra ahora y páguelo a plazos utilizando nuestros servicios de financiación.
Más detallesNo Olvide Añadir
Elementos adicionales y accesorios que harán su hogar aún más confortable
Mosquiteras
Manillas con Cerradura
Laminación
Elementos Decorativos
Compare con Perfiles Similares
Soluciones alternativas de otros fabricantes
Rehau Euro-design 70
Rehau Synego
Rehau Brillant-Design 70
Kömmerling EuroFutur Elegance
Kömmerling Xtrem 76 AD
Kömmerling Xtrem 76 MD
Disponible en Su Región
Trabajamos en toda España
Dejar una reseña
Reseñas de clientes
Descubra lo que la gente dice al respecto
Aún no hay reseñas. ¡Sea el primero!
FAQs
Preguntas Frecuentes sobre Rehau Geneo PHZ
¿Qué es Geneo PHZ?
Esta es una versión de Geneo para casas pasivas: profundidad de 86 mm, composite RAU-FIPRO X y módulos térmicos especiales para máximo aislamiento térmico.
¿Qué valores de eficiencia energética son alcanzables?
En configuraciones de eficiencia energética, Uw puede bajar a ≈0,72 W/m²·K y menos, lo que cumple con los requisitos de casa pasiva.
¿Qué espesor de unidad de vidrio y aislamiento acústico?
Unidades de vidrio de hasta 53 mm con espaciador cálido; aislamiento acústico con selección adecuada - alrededor de hasta 50 dB (Rw).
¿Se necesita refuerzo de acero?
Como en Geneo, el composite proporciona rigidez sin acero en la mayoría de los casos. Esto reduce los "puentes térmicos" y el peso de la estructura.
¿Hay requisitos especiales de instalación?
Sí, para lograr los parámetros de casa pasiva, son importantes los nodos de instalación cálidos, sellado perimetral y ventilación pensada de la habitación.
¿Es adecuado para climas severos?
Sí, el sistema fue desarrollado para una pérdida mínima de calor, por lo que es efectivo en regiones frías y proyectos de energía estricta.
¿Se puede combinar con protección contra robos y diseño?
Sí, hay configuraciones disponibles hasta RC2/RC3, bisagras ocultas, manijas de diseño y una amplia paleta de laminaciones KALEIDO.
¿Geneo PHZ o Geneo regular?
Se elige Geneo PHZ cuando se necesita la máxima eficiencia térmica (casa pasiva). Si las tareas son más simples, el Geneo estándar es suficiente.





























