Veka Vekamove 76 es un avance en el segmento de estructuras correderas, que combina las mejores características de las puertas elevadoras-correderas (HS) y los sistemas oscilobatientes-correderos (PSK). A diferencia de las correderas estándar, aquí se utiliza un mecanismo de cierre innovador: la hoja se desplaza perpendicularmente al marco, presionando firmemente las juntas en todo el perímetro. Esto proporciona una hermeticidad absoluta, protección contra la lluvia oblicua y el ruido de la calle, algo inalcanzable para los sistemas correderos convencionales con juntas de cepillo.
El sistema se basa en la plataforma premium Softline 76 (clase «A»), lo que garantiza alta rigidez y la posibilidad de crear hojas de gran formato. El manejo es intuitivo y no requiere esfuerzo físico: al girar la manilla se libera suavemente la hoja, que se desliza con fluidez por las guías. Es la solución ideal para la salida a la terraza o el balcón, donde es importante conservar el espacio útil y proporcionar máxima transmisión de luz sin pérdidas de calor.
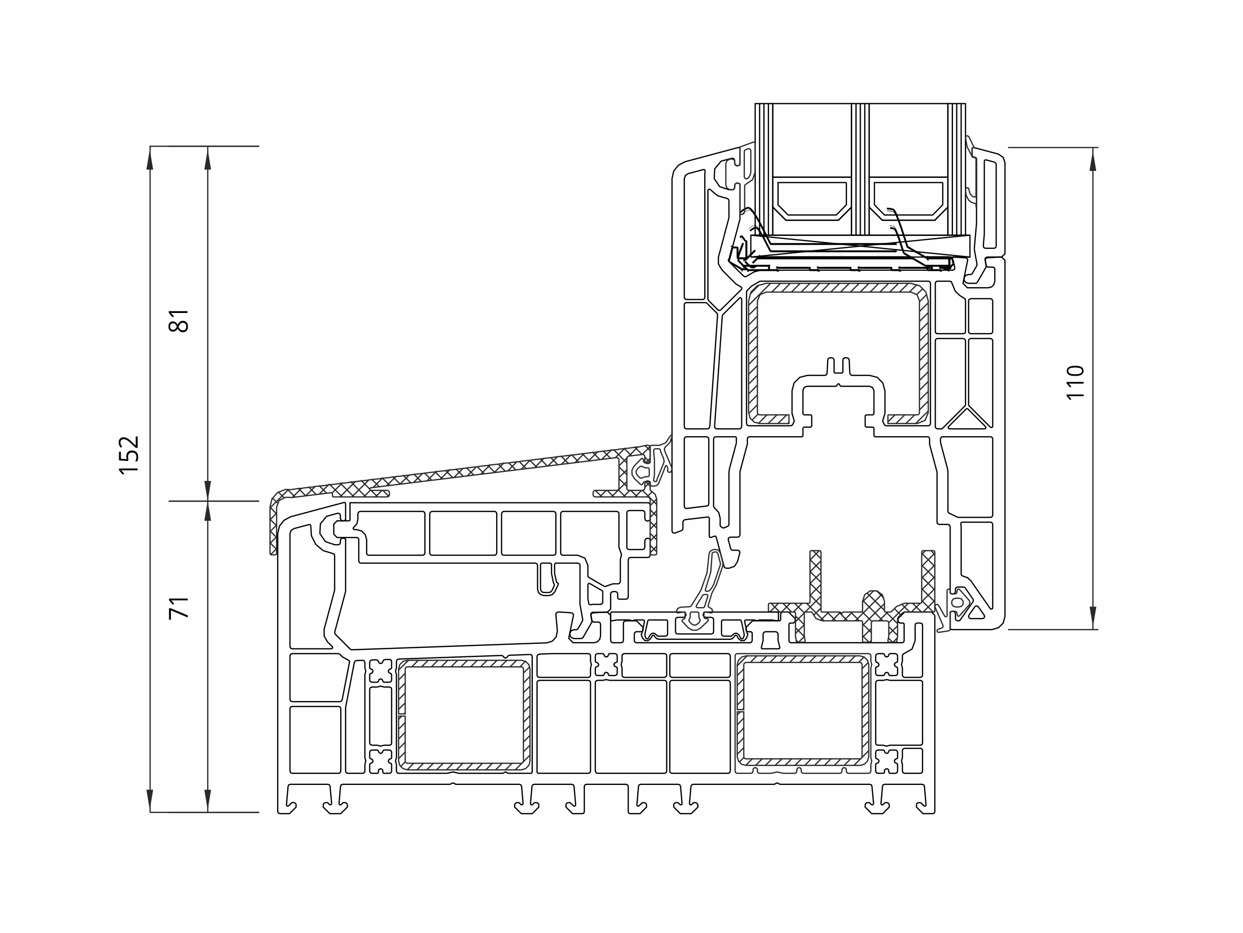
Especificaciones Técnicas
Detalles
Sistema corredera innovador. Combina la hermeticidad de una ventana clásica con la comodidad y la vista panorámica de las puertas correderas.
Parámetros constructivos del sistema:
- Tipo de sistema: Sistema corredera hermético (tecnología Smart Slide / Vekamove).
- Profundidad de montaje del marco: 150 mm (proporciona alta estabilidad de la estructura en el hueco).
- Profundidad de montaje de la hoja: 76 mm (compatible con el sistema Softline 76).
- Clase de perfil: Clase «A» (pared de 3 mm). Garantiza ausencia de deformaciones en grandes dimensiones.
- Sellado: Circuito cerrado de sellado de TPE/EPDM sin interrupciones (a diferencia de las juntas de cepillo).
- Refuerzo: Refuerzo de acero reforzado en marco y hoja para compensar las cargas de viento en grandes superficies.
Opciones de acristalamiento:
- Grosor del acristalamiento: hasta 48 mm.
- Tipos de acristalamiento: Posibilidad de instalar acristalamientos de doble cámara cálidos, vidrio laminado y templado (recomendado por seguridad).
- Profundidad de alojamiento del vidrio: 25 mm (minimización del riesgo de condensación).
Geometría y funcionamiento:
- Dimensiones máximas: Ancho de la estructura hasta 4,5 metros, ancho de hoja hasta 2,0 metros.
- Esquema de apertura: Esquema A (una hoja fija, una móvil) o Esquema C (dos hojas correderas).
- Umbral: Umbral de marco (marco cerrado) para máximo aislamiento térmico.
Indicadores técnicos:
- Aislamiento térmico (Uf): 1,3 W/m²K (el Uw total de la ventana puede alcanzar 0,8 W/m²K con acristalamiento cálido).
- Permeabilidad al aire: Clase 4 (máxima, ausencia total de filtraciones).
- Estanqueidad al agua: Clase 9A.
Sin corrientes
Hermeticidad absoluta

Manejo intuitivo
Facilidad de movimiento

Más luz
Vista panorámica

Veka Vekamove 76
Sistema corredera innovador. Combina la hermeticidad de una ventana clásica con la comodidad y la vista panorámica de las puertas correderas.
Más Ideas e Inspiración
Estos son algunos ejemplos de nuestro trabajo con el perfil Veka Vekamove 76. Toda esta inspiración es para usted y solo para usted.
Estamos trabajando en mantener los datos actualizados. Contáctenos si necesita materiales actualizados.
Opciones de Financiación
Disfrute de su compra ahora y páguelo a plazos utilizando nuestros servicios de financiación.
Más detallesNo Olvide Añadir
Elementos adicionales y accesorios que harán su hogar aún más confortable
Mosquiteras
Manillas con Cerradura
Laminación
Elementos Decorativos
Compare con Perfiles Similares
Soluciones alternativas de otros fabricantes
Veka Vekamotion 82
Veka Vekamotion 82 MAX
Rehau High-Design Slide
Rehau Synego Slide
Rehau Panorama Swing
Dejar una reseña
Reseñas de clientes
Descubra lo que la gente dice al respecto
Aún no hay reseñas. ¡Sea el primero!
FAQs
Preguntas Frecuentes sobre Veka Vekamove 76
¿En qué se diferencia Vekamove de un patio convencional (PSK)?
La principal diferencia es la comodidad. En PSK hay que tirar de la hoja pesada hacia uno, y los herrajes complejos a menudo se rompen. En Vekamove la hoja simplemente se desliza hacia un lado. Además, Vekamove no «consume» espacio interior de la habitación al abrirse.
¿Es más cálido que una puerta elevadora-corredera (HS)?
En términos de aislamiento térmico, Vekamove es comparable a los portales HS, y a veces los supera gracias al circuito de presión de junta más ajustado (con marco cerrado). Además, el coste de Vekamove suele ser menor.
¿Se puede instalar este sistema en un dormitorio?
Sí, sin duda. La alta hermeticidad (clase 4 en permeabilidad al aire) y el excelente aislamiento acústico (hasta 43 dB) hacen que este sistema sea apto para cualquier espacio habitable, incluidos dormitorios y habitaciones infantiles.
¿Qué tipo de umbral tiene esta puerta?
El sistema utiliza un umbral de marco. Esto significa que en la parte inferior habrá un perfil de marco (como en una ventana normal), lo cual es necesario para máximo calor. No es un umbral «sin barreras» a nivel del suelo, pero garantiza la ausencia de congelación.
¿Se puede laminar Vekamove?
Sí, el perfil está disponible en toda la paleta de colores Veka, incluido el acabado mate premium Spectral. Todas las partes visibles del marco y la hoja se laminan, creando un aspecto unitario.
¿Qué tan fiables son los herrajes?
El sistema utiliza herrajes especiales (por ejemplo, Roto Patio Inowa o el análogo Siegenia), desarrollados específicamente para este tipo de apertura. Tienen menos piezas de fricción que PSK y están diseñados para decenas de miles de ciclos.















