WDS 76 MD — Tecnologías del segmento premium accesibles para todos. Es nuestro sistema más vendido porque ofrece las características de ventanas alemanas de élite (profundidad 76 mm + junta central) al precio del segmento estándar.
Dos ases principales de este sistema:
- Sistema MD (Mitteldichtung): La presencia de una tercera junta de sellado en el centro del marco crea una "cámara seca" para los herrajes. Los mecanismos metálicos no entran en contacto con el aire húmedo exterior, lo que es crítico para viviendas en la costa española (protección contra la corrosión por sal).
- Diseño de tendencia: A diferencia de las formas redondeadas clásicas, WDS 76 tiene elegantes aristas geométricas. Este estilo geométrico encaja perfectamente en interiores modernos, lofts y nuevas construcciones de Madrid.
Si está eligiendo entre las versiones AD y MD, recomendamos encarecidamente la MD. La diferencia de precio es mínima, pero el nivel de confort y la vida útil de los herrajes son significativamente mayores.
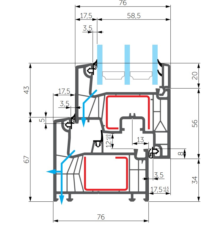
Especificaciones Técnicas
Detalles
Elección nº1 en relación calidad/precio. 3 juntas de sellado, 6 cámaras y diseño moderno.
Parámetros constructivos del sistema:
- Profundidad de montaje: 76 mm.
- Construcción del perfil: 6 cámaras en marco y hoja para máximo coeficiente de eficiencia energética.
- Sistema de sellado: 3 circuitos (exterior, interior y central). El circuito central crea una cámara adicional que aísla el aire frío y el ruido.
- Espesor de pared exterior: Clase A — proporciona rigidez estructural y mayor resistencia de las esquinas soldadas.
- Protección de herrajes: La junta central crea una cámara "seca" para los herrajes, previniendo la corrosión de los mecanismos por condensación o precipitación.
Opciones de acristalamiento:
- Espesor máximo de relleno: hasta 48 mm.
- Eficiencia: Permite usar acristalamientos de dos cámaras extra anchos con separadores de 16-18 mm, minimizando las pérdidas de calor.
Dimensiones máximas de la estructura:
- Ancho máximo de hoja: hasta 1100 mm.
- Altura máxima de hoja: hasta 2400 mm (gracias a la rigidez del perfil de 76 mm y refuerzo de 1,5–2,0 mm).
Características certificadas:
- Coeficiente de resistencia térmica (Ro): hasta 1,02 m²°C/W (con acristalamiento apropiado).
- Aislamiento térmico del perfil (Uf): ~1,1 W/m²K.
- Aislamiento acústico (Rw): hasta 46-48 dB (el circuito de sellado central funciona como amortiguador acústico).
- Permeabilidad al aire: Clase 4 (máxima según DIN EN 12207).
- Estanqueidad al agua: Clase E1050 (soporta la presión de lluvia torrencial).
Durabilidad
Protección contra sal y humedad
Estilo
Diseño geométrico

Aislamiento acústico
Acristalamiento 48 mm

WDS 76 MD (76 mm)
Elección nº1 en relación calidad/precio. 3 juntas de sellado, 6 cámaras y diseño moderno.
Más Ideas e Inspiración
Estos son algunos ejemplos de nuestro trabajo con el perfil WDS 76 MD (76 mm). Toda esta inspiración es para usted y solo para usted.
Estamos trabajando en mantener los datos actualizados. Contáctenos si necesita materiales actualizados.
Opciones de Financiación
Disfrute de su compra ahora y páguelo a plazos utilizando nuestros servicios de financiación.
Más detallesNo Olvide Añadir
Elementos adicionales y accesorios que harán su hogar aún más confortable
Mosquiteras
Manillas con Cerradura
Laminación
Elementos Decorativos
Compare con Perfiles Similares
Soluciones alternativas de otros fabricantes
WDS 5S
WDS 6S (70 mm)
WDS 7S (70 mm)
Rehau Euro-design 70
Rehau Synego
Rehau Brillant-Design 70
Disponible en Su Región
Trabajamos en toda España
Dejar una reseña
Reseñas de clientes
Descubra lo que la gente dice al respecto
Aún no hay reseñas. ¡Sea el primero!
FAQs
Preguntas Frecuentes sobre WDS 76 MD (76 mm)
¿Vale la pena pagar más por la versión MD?
Sin duda, sí. La diferencia de precio es mínima (alrededor del 5-7%), pero obtiene una ventana de una clase de estanqueidad completamente diferente. La tercera junta es el estándar para viviendas modernas de calidad.
¿Es adecuada esta ventana para el baño?
Perfecta. Gracias al alto aislamiento térmico (6 cámaras + 3 juntas), la superficie interior del marco permanece caliente, lo que previene la formación de condensación y moho en espacios húmedos.
¿De qué color es la junta?
En la versión blanca estándar viene con junta gris claro, que amplía visualmente la ventana. En ventanas laminadas (antracita, madera) usamos junta negra o caramelo para armonía de color.
¿Se pueden poner bisagras ocultas?
Sí, el sistema WDS 76 MD es perfectamente compatible con herrajes ocultos. Esto resalta el diseño moderno de la ventana — sin bisagras visibles, solo líneas limpias.
¿Qué tan estrecho es el marco de esta ventana?
La altura de la combinación "marco + hoja" es de solo 116 mm. Es uno de los valores más bajos de su clase, lo que proporciona máxima entrada de luz natural en la habitación.
¿Cuánto puedo ahorrar en calefacción con ventanas WDS 76 MD?
El sistema de tres juntas combinado con el perfil de 6 cámaras y acristalamiento de bajo emisivo permite reducir las pérdidas de calor a través de las ventanas en un 40-50% en comparación con los marcos de aluminio antiguos. En el clima de España, esto significa ahorro en aire acondicionado en verano y calefacción en invierno — hasta 200-300€ al año por piso.





















