Cortizo C 70 es la prueba de que las ventanas correderas pueden ser cálidas. A diferencia de los antiguos "sliders" de aluminio, este sistema está fabricado con PVC de alta calidad y tiene una profundidad de montaje de 70 mm, compatible con los principales sistemas de ventanas. Es la elección ideal para quienes desean ahorrar espacio útil en el balcón o terraza, sin sacrificar el confort del hogar ni la temperatura interior.
La construcción del perfil ha sido desarrollada especialmente para el clima de España: es resistente al sol agresivo, al aire salino del mar y no requiere pintura. Gracias a la estructura multicámara del marco y la hoja, el C 70 amortigua eficazmente el ruido de la calle y mantiene el frescor en verano. La suavidad de desplazamiento está garantizada por rodillos fiables y guías de acero (refuerzo) ocultas en el interior del perfil. Es una solución práctica, duradera y estética para el apartamento moderno.
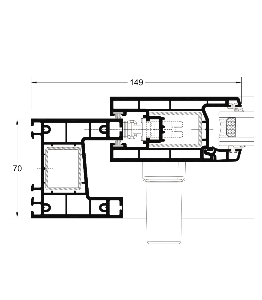
Especificaciones Técnicas
Detalles
Sistema corredera cálido de PVC. Solución ideal para el acristalamiento de balcones y galerías, que combina el ahorro de espacio con un alto aislamiento térmico del perfil de plástico de 70 mm de profundidad.
Parámetros constructivos del sistema:
- Profundidad de montaje: Marco — 70 mm. Hoja — 46 mm.
- Tipo de apertura: Corredera con 2, 3 o 4 hojas sobre dos guías.
- Material: PVC de alta resistencia al impacto, estabilizado con calcio-zinc (Greenline), resistente a la radiación UV.
- Construcción del perfil: Estructura multicámara del marco (normalmente 3-5 cámaras) y hoja para aislamiento térmico.
- Refuerzo: Refuerzo de acero galvanizado en el interior del marco y hoja para alta resistencia estática.
- Sellado: Doble contorno de junta de cepillo de alta calidad (felpa) con inserto de protección contra la humedad.
Posibilidades de acristalamiento:
- Espesor máximo de relleno: hasta 28 mm.
- Tipos de relleno: Vidrios de cámara simple (2 vidrios), posibilidad de usar vidrio de ahorro energético.
Dimensiones máximas y mecánica:
- Dimensiones máximas de hoja: Recomendado hasta 1400 mm de ancho.
- Opciones de color: Blanco, laminado imitación madera, laminado de colores (incluyendo tonos grises y antracita).
- Compatibilidad: Compatibilidad total con los perfiles complementarios del sistema A 70 (extensores, conectores).
Características certificadas:
- Aislamiento térmico de la ventana (Uw): hasta 1,3 W/m²K (según acristalamiento).
- Estanqueidad al agua: Clase 7A.
- Permeabilidad al aire: Clase 4.
- Resistencia al viento: Clase C5.
- Aislamiento acústico: hasta 34 dB.
Comodidad
Ahorro de espacio

Aislamiento térmico
Más cálido que el aluminio

Confort
Funcionamiento silencioso

Cortizo C 70
Sistema corredera cálido de PVC. Solución ideal para el acristalamiento de balcones y galerías, que combina el ahorro de espacio con un alto aislamiento térmico del perfil de plástico de 70 mm de profundidad.
Más Ideas e Inspiración
Estos son algunos ejemplos de nuestro trabajo con el perfil Cortizo C 70. Toda esta inspiración es para usted y solo para usted.
Estamos trabajando en mantener los datos actualizados. Contáctenos si necesita materiales actualizados.
Opciones de Financiación
Disfrute de su compra ahora y páguelo a plazos utilizando nuestros servicios de financiación.
Más detallesNo Olvide Añadir
Elementos adicionales y accesorios que harán su hogar aún más confortable
Mosquiteras
Manillas con Cerradura
Laminación
Elementos Decorativos
Compare con Perfiles Similares
Soluciones alternativas de otros fabricantes
Cortizo E 170
Rehau High-Design Slide
Rehau Synego Slide
Rehau Panorama Swing
Dejar una reseña
Reseñas de clientes
Descubra lo que la gente dice al respecto
Aún no hay reseñas. ¡Sea el primero!
FAQs
Preguntas Frecuentes sobre Cortizo C 70
¿En qué se diferencia el sistema C 70 del practicable A 70?
El C 70 es un sistema corredera (las hojas se desplazan izquierda-derecha), mientras que el A 70 es practicable (se abre sobre bisagras). El C 70 es más cómodo en espacios limitados, pero el A 70 ofrece una hermeticidad y aislamiento acústico ligeramente mejores gracias a la junta de goma.
¿Amarilleará el plástico con el sol?
No, Cortizo utiliza un compuesto de PVC de alta calidad con aditivos de dióxido de titanio, especialmente desarrollado para países con alta radiación solar. El perfil conserva su blancura y superficie brillante durante décadas.
¿Qué acristalamiento se puede poner en este sistema?
El espesor máximo del acristalamiento es de 28 mm. Esto permite instalar un acristalamiento estándar de cámara simple (dos vidrios de 4 o 6 mm) con recubrimiento de ahorro energético y relleno de argón, lo cual es más que suficiente para un balcón cálido.
¿Qué tan seguro es el sistema corredera?
El sistema está equipado con cerraduras de gancho (cerrojos de media luna) que fijan la hoja de forma fiable. Gracias al resistente refuerzo de acero en el interior del perfil, forzar la hoja es bastante difícil, aunque en clase de resistencia al robo es inferior a las ventanas practicables con cerraderos de seta.
¿Es difícil limpiar estas ventanas?
El mantenimiento es sencillo, ya que el PVC se limpia fácilmente con agua jabonosa. La principal ventaja es la posibilidad de desmontar las hojas (con habilidad o ayuda de un especialista) para limpiar de forma segura los cristales exteriores, lo cual es especialmente relevante en pisos altos.
¿Se puede usar el C 70 para salida a terraza?
Sí, es un uso frecuente. Sin embargo, hay que recordar que el sistema tiene un pequeño umbral (marco) que hay que superar. Para puertas con alto tránsito, es mejor considerar sistemas de puerta especiales o construcciones elevables-correderas.


















