Cortizo E 170 es la "artillería pesada" en el mundo de las ventanas de plástico, creada para quienes sueñan con una pared de cristal en lugar de una puerta convencional. Es un sistema elevable-corredera (Lift & Slide): al girar la manilla maciza, la hoja se eleva ligeramente sobre los rodillos, lo que le permite deslizarse por el raíl prácticamente sin fricción. Incluso si la puerta pesa 300 kg, un niño puede manejarla con facilidad. En posición cerrada, la hoja desciende y se presiona firmemente contra el marco mediante juntas de goma, proporcionando una hermeticidad inalcanzable para las ventanas correderas convencionales.
El potente marco de 170 mm de ancho proporciona una estabilidad estática excepcional, permitiendo cubrir huecos de hasta 6 metros de ancho. Es la solución ideal para la salida del salón al jardín o a la terraza junto a la piscina. Gracias al uso de PVC cálido y la posibilidad de instalar acristalamientos anchos, el sistema E 170 funciona como una barrera térmica fiable, conservando el confort del hogar incluso en tiempo ventoso de invierno, a diferencia del aluminio frío.
Especificaciones Técnicas
Detalles
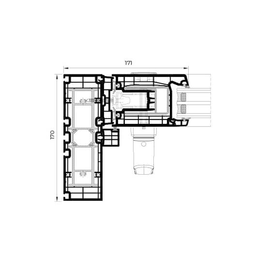
Sistema elevable-corredera premium de PVC (HS-Portal). Profundidad de montaje de 170 mm para la creación de puertas panorámicas de dimensiones gigantes con apertura suave y ligera.
Parámetros constructivos del sistema:
- Profundidad de montaje: Marco — 170 mm. Hoja — 70 mm.
- Tipo de apertura: Elevable-corredera (HS / Lift & Slide). La hoja se eleva antes de desplazarse.
- Material: PVC de máxima calidad (Greenline) con potente refuerzo de acero en el interior para prevenir deformaciones.
- Número de cámaras: 5 cámaras en hoja y marco para alto aislamiento térmico.
- Sellado: Sistema con junta de presión de EPDM (goma), no cepillo. Esto garantiza la ausencia de infiltraciones.
- Umbral: Posibilidad de instalar umbral bajo con rotura de puente térmico para accesibilidad sin barreras.
Posibilidades de acristalamiento:
- Espesor máximo de relleno: hasta 40 mm.
- Tipos de relleno: Vidrios de doble cámara, laminado de seguridad, vidrio templado de gran formato.
Dimensiones máximas y mecánica:
- Dimensiones máximas de hoja: Anchura hasta 3000 mm, Altura hasta 2800 mm.
- Peso de hoja: hasta 300 kg (estándar), hasta 400 kg (herraje especial).
- Color: Paleta completa de laminados Cortizo, incluyendo texturas de madera.
Características certificadas:
- Aislamiento térmico del perfil (Uf): 1,6 W/m²K.
- Aislamiento térmico de la ventana (Uw): hasta 0,9 W/m²K (con acristalamiento cálido).
- Estanqueidad al agua: Clase 8A (protección excelente).
- Permeabilidad al aire: Clase 4 (máxima).
- Resistencia al viento: Clase C2/B3 (según tamaño).
Escala
Dimensiones panorámicas

Aislamiento
Máxima hermeticidad

Cortizo E 170
Sistema elevable-corredera premium de PVC (HS-Portal). Profundidad de montaje de 170 mm para la creación de puertas panorámicas de dimensiones gigantes con apertura suave y ligera.
Más Ideas e Inspiración
Estos son algunos ejemplos de nuestro trabajo con el perfil Cortizo E 170. Toda esta inspiración es para usted y solo para usted.
Estamos trabajando en mantener los datos actualizados. Contáctenos si necesita materiales actualizados.
Opciones de Financiación
Disfrute de su compra ahora y páguelo a plazos utilizando nuestros servicios de financiación.
Más detallesNo Olvide Añadir
Elementos adicionales y accesorios que harán su hogar aún más confortable
Mosquiteras
Manillas con Cerradura
Laminación
Elementos Decorativos
Compare con Perfiles Similares
Soluciones alternativas de otros fabricantes
Cortizo C 70
Rehau High-Design Slide
Rehau Synego Slide
Rehau Panorama Swing
Disponible en Su Región
Trabajamos en toda España
Dejar una reseña
Reseñas de clientes
Descubra lo que la gente dice al respecto
Aún no hay reseñas. ¡Sea el primero!
FAQs
Preguntas Frecuentes sobre Cortizo E 170
¿En qué se diferencia el E 170 de la corredera convencional C 70?
La diferencia es enorme. El C 70 es un sistema corredera simple sobre rodillos con junta de cepillo (bueno para balcones). El E 170 es un sistema elevable-corredera con mecanismo de elevación, junta de goma y posibilidad de hacer hojas 2-3 veces más grandes y pesadas. El E 170 es mucho más cálido y hermético.
¿Es difícil abrir una puerta tan pesada?
Sorprendentemente, no. Todo el peso recae sobre los potentes carros con rodillos. Gracias a la larga palanca de la manilla, elevar la hoja es fácil, y se desliza por el raíl con un esfuerzo mínimo. Cualquier miembro de la familia puede manejarla.
¿El umbral de este sistema es alto?
El marco estándar tiene altura, pero el E 170 permite empotrar el umbral en el suelo durante la instalación, dejando visible solo un saliente bajo (unos 15-20 mm) o utilizando un umbral especial "sin barreras". Esto hace el paso cómodo y seguro.
¿Es seguro un cristal tan grande?
La seguridad es absoluta. En primer lugar, se utiliza vidrio templado o laminado, que es difícil de romper. En segundo lugar, en estado cerrado (bajado) es imposible desplazar o sacar la hoja del raíl desde el exterior: se bloquea por su propio peso y los mecanismos de cierre.
¿Se puede instalar el E 170 en una casa con calefacción?
Ese es precisamente su propósito. El perfil de PVC, 5 cámaras y la posibilidad de instalar acristalamiento de 40 mm hacen de este sistema uno de los más cálidos del mercado de construcciones correderas. Es ideal para espacios habitables y jardines de invierno.
¿Hay limitaciones de color?
El sistema está disponible en toda la gama de laminados Cortizo. Puede pedir textura de roble, nogal o tonos mate modernos de antracita. La calidad de la película garantiza resistencia a la decoloración bajo el sol español.

















