Cortizo COR 60 es la elección ideal para quienes prefieren la estética y durabilidad del aluminio, pero no están dispuestos a sacrificar el confort del hogar. No es el aluminio frío que se instalaba en el siglo pasado. El sistema está equipado con tecnología RPT (rotura de puente térmico): las partes exterior e interior del perfil están unidas por inserciones de poliamida que cortan la transmisión del frío. El resultado es una ventana elegante y rígida que no se congela y soporta excelentemente las cargas estáticas.
La profundidad de montaje del marco de 60 mm hace que este sistema sea universal para el reemplazo de ventanas en cualquier tipo de edificio, desde apartamentos hasta chalets. Gracias a la resistencia del metal, el ancho visible del perfil puede ser menor que el de los equivalentes de plástico, lo que proporciona más luz natural en el interior. COR 60 permite realizar cualquier idea de diseño: desde hojas clásicas con junquillo redondeado hasta líneas rectas sobrias, con posibilidad de pintura en cualquier color de la escala RAL o anodizado.
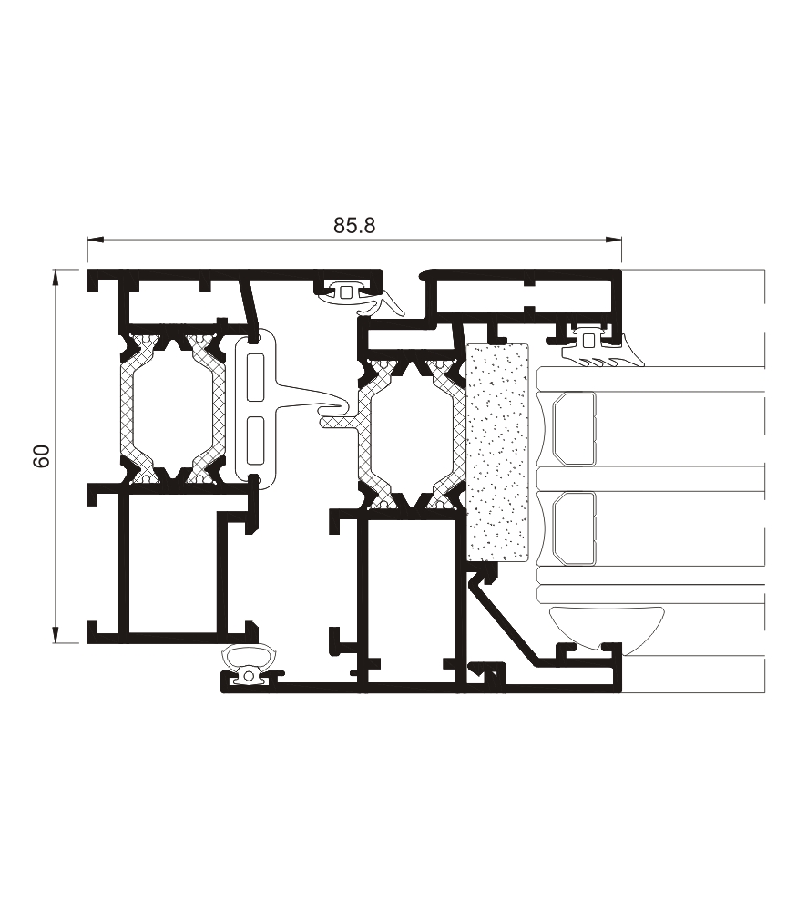
Especificaciones Técnicas
Detalles
Aluminio moderno con rotura de puente térmico. Sistema universal con profundidad de 60 mm que combina la elegancia de los perfiles metálicos, alta resistencia y excelente aislamiento térmico.
Parámetros constructivos del sistema:
- Profundidad de montaje: Marco — 60 mm, Hoja — 68 mm.
- Material: Aleación de aluminio 6063 T5 de alta calidad.
- Aislamiento térmico: Tecnología RPT (Rotura de Puente Térmico). Puentes térmicos de poliamida de 24 mm de ancho, reforzados con fibra de vidrio.
- Diseño: Variedad de junquillos (rectos o redondeados) para adaptarse al interior.
- Sistema de sellado: Triple junta de EPDM (caucho vulcanizado) para protección contra infiltraciones y humedad.
- Espesor de paredes del perfil: 1,6 mm (ventanas) / 1,6 mm (puertas), lo que garantiza alta rigidez.
Posibilidades de acristalamiento:
- Espesor máximo de acristalamiento: hasta 48 mm.
- Tipos de acristalamiento: Vidrios de cámara simple y doble, paneles sándwich, vidrios acústicos y de seguridad.
Dimensiones máximas y acabados:
- Dimensiones máximas de hoja: Anchura hasta 1500 mm, Altura hasta 2600 mm (según herraje).
- Peso de hoja: hasta 120 kg.
- Acabado: Lacado en polvo (RAL), anodizado (metálico, oro, bronce), sublimación (efecto madera). Posibilidad de bicolor (diferente color interior y exterior).
Características certificadas:
- Aislamiento térmico del perfil (Uf): desde 2,2 W/m²K (según configuración).
- Estanqueidad al agua: Clase E1200 (alta).
- Permeabilidad al aire: Clase 4 (máxima).
- Resistencia al viento: Clase C5 (máxima).
- Aislamiento acústico: hasta 44 dB.
Fiabilidad
Durabilidad del metal

Calor
Tecnología de rotura de puente térmico (RPT)

Diseño
Libertad estética

Cortizo COR 60
Aluminio moderno con rotura de puente térmico. Sistema universal con profundidad de 60 mm que combina la elegancia de los perfiles metálicos, alta resistencia y excelente aislamiento térmico.
Más Ideas e Inspiración
Estos son algunos ejemplos de nuestro trabajo con el perfil Cortizo COR 60. Toda esta inspiración es para usted y solo para usted.
Estamos trabajando en mantener los datos actualizados. Contáctenos si necesita materiales actualizados.
Opciones de Financiación
Disfrute de su compra ahora y páguelo a plazos utilizando nuestros servicios de financiación.
Más detallesNo Olvide Añadir
Elementos adicionales y accesorios que harán su hogar aún más confortable
Mosquiteras
Manillas con Cerradura
Laminación
Elementos Decorativos
Compare con Perfiles Similares
Soluciones alternativas de otros fabricantes
Cortizo COR 70 Industrial
Cortizo COR 70 Hoja Oculta
Cortizo COR 80 Industrial
Schüco AWS 65
Schüco AWS 75.SI+
Schüco AWS 75 PD.SI
Disponible en Su Región
Trabajamos en toda España
Dejar una reseña
Reseñas de clientes
Descubra lo que la gente dice al respecto
Aún no hay reseñas. ¡Sea el primero!
FAQs
Preguntas Frecuentes sobre Cortizo COR 60
¿Es el aluminio COR 60 más frío que las ventanas de plástico?
El aluminio en sí conduce el calor mejor que el plástico, pero gracias a la rotura de puente térmico (inserción de poliamida), el sistema COR 60 cumple con las normas modernas de ahorro energético. Con un buen vidrio de ahorro energético, la diferencia de confort para un apartamento en el clima de España será prácticamente imperceptible en comparación con el PVC estándar.
¿Qué es la "rotura de puente térmico" y para qué sirve?
La rotura de puente térmico es una "capa intermedia" de plástico resistente dentro del perfil de aluminio. Sin ella, el marco interior estaría helado en invierno, como en los balcones antiguos. La rotura de puente térmico bloquea la transmisión de temperatura, haciendo que la ventana de aluminio sea cálida y apta para espacios habitables.
¿Puede desprenderse la pintura del aluminio con el tiempo?
En las instalaciones de fábrica de Cortizo, la pintura se aplica mediante pulverización electrostática con posterior horneado. Este recubrimiento se convierte en parte del metal, no se despega, no se decolora al sol y es mucho más resistente a los arañazos que el laminado de las ventanas de plástico.
¿Permite este sistema fabricar ventanas grandes?
Sí, la rigidez del aluminio es su principal baza. COR 60 permite fabricar hojas de mayor tamaño que los sistemas equivalentes de PVC, sin riesgo de descuelgue. Es la opción ideal para acristalamientos del suelo al techo o huecos amplios.
¿Es complicado el mantenimiento de las ventanas de aluminio?
El mantenimiento es mínimo. El aluminio no atrae el polvo gracias a la ausencia de electricidad estática (a diferencia del PVC) y tiene una superficie lisa. Basta con limpiar los marcos con un paño húmedo un par de veces al año. El herraje requiere lubricación estándar una vez al año.
¿Qué seguridad ofrece una ventana de aluminio frente a intentos de robo?
El perfil de aluminio es mucho más difícil de deformar o forzar con una palanca que uno de plástico. En combinación con cerraderos de seta del herraje y vidrio antivandalismo (laminado), el sistema COR 60 proporciona un nivel muy alto de seguridad básica para el hogar.


















