Cortizo COR 70 Industrial es la respuesta a las demandas de diseñadores y arquitectos modernos. Este sistema rompe estereotipos, ofreciendo marcos increíblemente finos con ancho visible mínimo, lo que permite que entre en casa la máxima luz natural. El nombre "Industrial" enfatiza la geometría rigurosa del perfil: aquí no hay redondeos ni excesos decorativos, solo líneas rectas y nítidas que encajan perfectamente en estilos loft, high-tech y minimalismo contemporáneo.
Pero detrás del diseño refinado se esconde un potente aislamiento térmico. Gracias a la mayor profundidad de montaje (70 mm) y al uso de inserciones de poliamida extra anchas (35 mm), este sistema compite en prestaciones de ahorro energético con las mejores ventanas de PVC. Obtiene la rigidez y durabilidad del metal, un aspecto elegante y un microclima confortable en casa, independientemente del tiempo que haga fuera. Es la elección de perfeccionistas para quienes cada detalle del interior es importante.
Especificaciones Técnicas
Detalles
Superventas en el mundo de la arquitectura moderna. Sistema de aluminio con profundidad de 70 mm y rotura de puente térmico ampliada, creado para quienes buscan máxima transmisión de luz y estética de minimalismo riguroso.
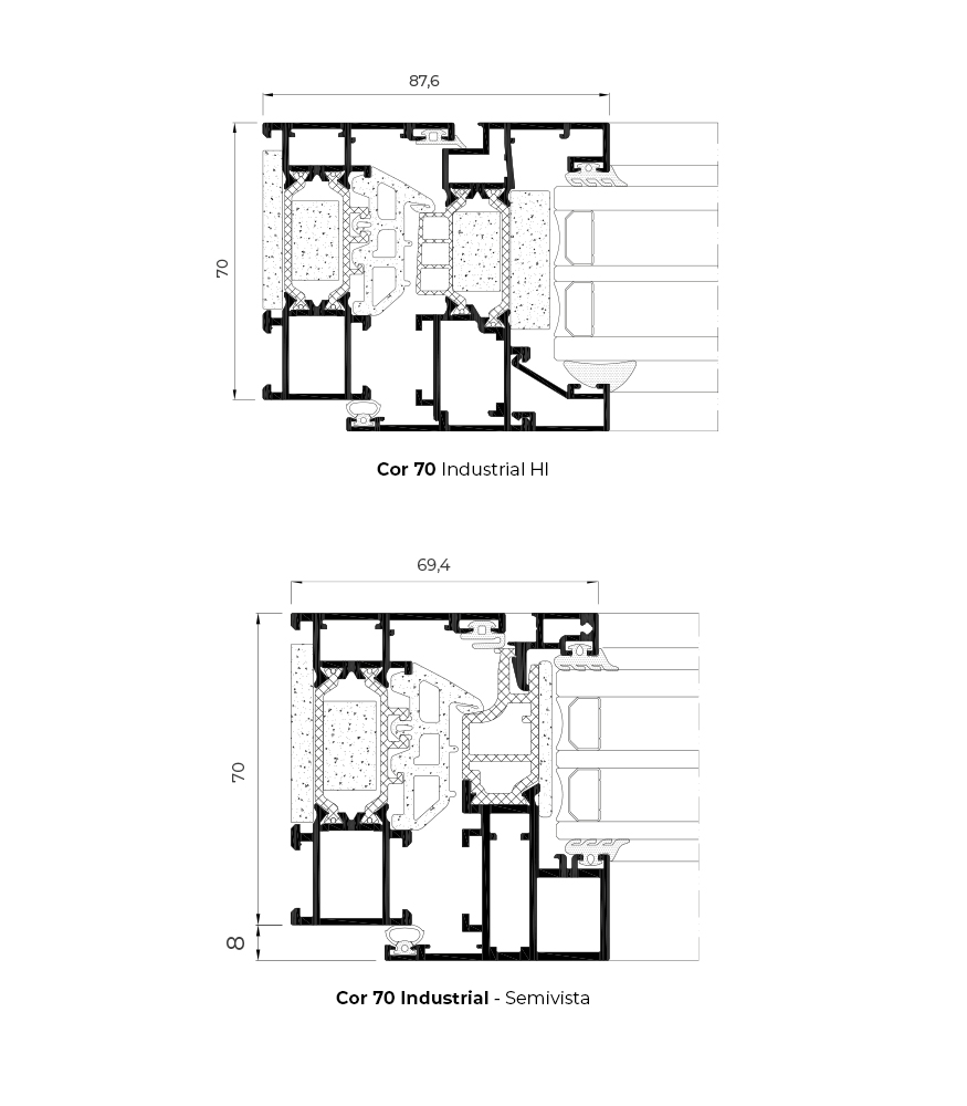
Parámetros constructivos del sistema:
- Profundidad de montaje: Marco — 70 mm, Hoja — 78 mm.
- Aislamiento térmico: Tecnología RPT con puentes térmicos de poliamida de 32 a 35 mm de ancho (según zona), lo que garantiza baja transmisión térmica.
- Material: Aleación de aluminio primario 6063 T5.
- Diseño: La serie Industrial se distingue por la geometría recta de junquillos y perfil, creando el efecto de "ventana de acero". El ancho visible del conjunto (marco+hoja) es de solo 93,5 mm (en versión Hoja Oculta) o minimalista estándar en Industrial.
- Sellado: Sistema de triple junta EPDM para máxima hermeticidad (clase 4).
- Espesor del perfil: 1,5–1,6 mm para garantizar alta estática.
Posibilidades de acristalamiento:
- Espesor máximo de acristalamiento: hasta 55 mm.
- Tipos de acristalamiento: Vidrios de doble cámara de alta eficiencia energética, laminados, vidrios de protección solar.
Dimensiones máximas y acabados:
- Dimensiones máximas de hoja: Anchura hasta 1500 mm, Altura hasta 2600 mm (puertas de balcón).
- Peso de hoja: hasta 100 kg (estándar), hasta 120 kg (con herraje reforzado).
- Colores: Cualquier color RAL, acabados mate texturizados, anodizado, sublimación imitación madera. Disponible opción "Bicolor".
Características certificadas:
- Aislamiento térmico del perfil (Uf): hasta 1,3 W/m²K.
- Aislamiento térmico de la ventana (Uw): desde 0,9 W/m²K (con triple acristalamiento).
- Estanqueidad al agua: Clase E1200.
- Permeabilidad al aire: Clase 4.
- Resistencia al viento: Clase C5.
Estilo
Estética "Industrial"

Calor
Rotura de puente térmico reforzada

Luz
Más luz, menos marco

Cortizo COR 70 Industrial
Superventas en el mundo de la arquitectura moderna. Sistema de aluminio con profundidad de 70 mm y rotura de puente térmico ampliada, creado para quienes buscan máxima transmisión de luz y estética de minimalismo riguroso.
Más Ideas e Inspiración
Estos son algunos ejemplos de nuestro trabajo con el perfil Cortizo COR 70 Industrial. Toda esta inspiración es para usted y solo para usted.
Estamos trabajando en mantener los datos actualizados. Contáctenos si necesita materiales actualizados.
Opciones de Financiación
Disfrute de su compra ahora y páguelo a plazos utilizando nuestros servicios de financiación.
Más detallesNo Olvide Añadir
Elementos adicionales y accesorios que harán su hogar aún más confortable
Mosquiteras
Manillas con Cerradura
Laminación
Elementos Decorativos
Compare con Perfiles Similares
Soluciones alternativas de otros fabricantes
Cortizo COR 60
Cortizo COR 70 Hoja Oculta
Cortizo COR 80 Industrial
Schüco AWS 65
Schüco AWS 75.SI+
Schüco AWS 75 PD.SI
Dejar una reseña
Reseñas de clientes
Descubra lo que la gente dice al respecto
Aún no hay reseñas. ¡Sea el primero!
FAQs
Preguntas Frecuentes sobre Cortizo COR 70 Industrial
¿El nombre Industrial significa que estas ventanas son solo para fábricas?
No, es el nombre del estilo. El sistema está destinado a viviendas, apartamentos y chalets. "Industrial" se refiere al diseño con líneas rectas y marcos estrechos, que recuerda al acristalamiento de antiguas fábricas, pero ejecutado con las tecnologías de confort más modernas.
¿En qué se diferencia COR 70 del COR 60 más económico?
La principal diferencia es la profundidad de montaje (70 mm frente a 60 mm) y el ancho de la rotura de puente térmico. En COR 70, la inserción de poliamida es casi una vez y media más ancha, lo que hace la ventana significativamente más cálida. Además, la profundidad de 70 mm permite instalar acristalamientos más gruesos (hasta 55 mm) y más eficientes.
¿"Llorará" la ventana de aluminio en invierno?
Gracias al amplio puente térmico y al sellado de calidad, el perfil COR 70 Industrial está perfectamente aislado del frío exterior. La superficie interior del marco se mantiene a temperatura ambiente, lo que excluye la formación de condensación siempre que haya una humedad normal en la estancia.
¿Qué fiabilidad tiene la protección antirrobo?
El aluminio es un material muy resistente, extremadamente difícil de dañar mecánicamente. El sistema es compatible con herraje antirrobo de clase RC2 (WK2). En combinación con vidrio encolado y manillas con cerradura, la ventana se convierte en un obstáculo serio para los ladrones.
¿Puedo pedir ventanas de diferente color por dentro y por fuera?
Sí, la tecnología de ensamblaje del perfil con rotura de puente térmico permite hacer ventanas "Bicolor". Por ejemplo, puede elegir un antracita sobrio (gris oscuro) para la fachada del edificio, y hacer las ventanas blancas o con textura de madera en el interior para que combinen con la decoración.
¿Cuál es el espesor máximo de vidrio que se puede instalar?
El sistema permite instalar acristalamientos de hasta 55 mm de espesor. Esto abre el acceso a las soluciones más avanzadas: puede instalar un vidrio de doble cámara (3 vidrios) con laminado acústico y recubrimiento de ahorro energético simultáneamente.



















