Cortizo COR 80 Industrial es una ventana que destruye el mito de que "solo el plástico puede ser cálido". Los ingenieros de Cortizo han conseguido crear un sistema de aluminio que supera en características de aislamiento térmico a la mayoría de perfiles de PVC del mercado. El secreto está en la escala: la profundidad de montaje de 80 mm permitió integrar una gigantesca rotura de puente térmico de 45 mm de ancho, rellena con una inserción especial de poliolefina espumada. Esto crea una barrera infranqueable para el frío y el calor.
Este sistema está creado para los proyectos más exigentes, donde cada detalle importa. La certificación Passivhaus confirma que COR 80 es ideal para casas de consumo energético casi nulo. Además del aislamiento térmico extremo, el perfil posee una estática sobresaliente, permitiendo sostener pesados vidrios de triple cámara de hasta 120 kg (y más con bisagras ocultas). La estética de la serie "Industrial" son líneas rectas sobrias que subrayan el estatus premium de la propiedad y el gusto moderno del propietario.
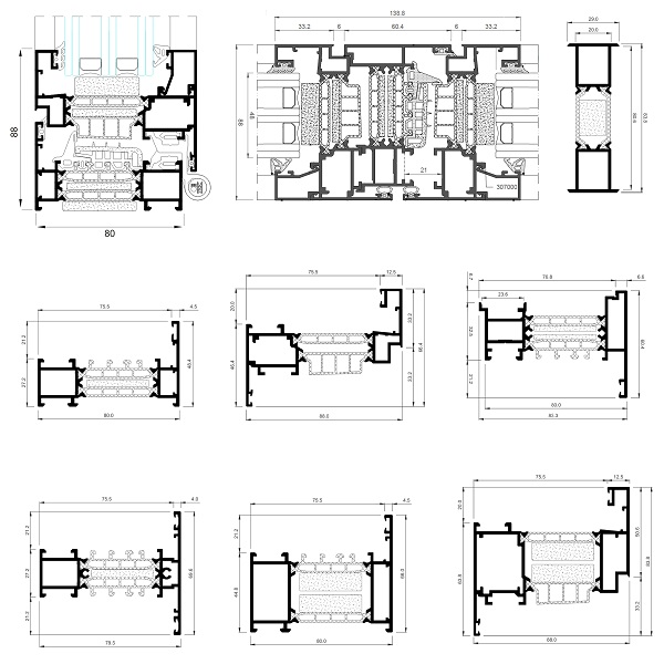
Especificaciones Técnicas
Detalles
La cima de la evolución de las ventanas de aluminio. Sistema con profundidad de montaje de 80 mm y rotura de puente térmico récord, certificado para construcción de casas pasivas (Passivhaus).
Parámetros constructivos del sistema:
- Profundidad de montaje: Marco — 80 mm, Hoja — 88 mm.
- Aislamiento térmico: Tecnología RPT con puentes térmicos de poliamida de 45 mm de ancho. En el interior del puente térmico hay inserciones de poliolefina espumada para bloquear la convección.
- Material: Aleación de aluminio 6063 T5.
- Sellado: Triple junta de EPDM con esquinas vulcanizadas para hermeticidad absoluta.
- Espesor del perfil: 1,6 mm.
- Certificación: Certificado del Instituto Passivhaus para zona climática "templado frío" (con cierta configuración de vidrio).
Posibilidades de acristalamiento:
- Espesor máximo de acristalamiento: hasta 65 mm.
- Tipos de acristalamiento: Vidrios de doble cámara (3 vidrios), laminados acústicos, vidrios antibalas.
Dimensiones máximas e indicadores:
- Dimensiones máximas de hoja: Anchura hasta 1500 mm, Altura hasta 2600 mm (3000 mm para puertas).
- Peso de hoja: hasta 160 kg (con herraje reforzado).
- Resistencia al robo: Compatibilidad con herraje de clase RC2 (WK2) y RC3.
Características certificadas:
- Aislamiento térmico de la ventana (Uw): desde 0,8 W/m²K (cumple estándares Passivhaus).
- Estanqueidad al agua: Clase E1950 (soporta cargas de tormentas extremas).
- Permeabilidad al aire: Clase 4.
- Resistencia al viento: Clase C5.
- Aislamiento acústico: hasta 46 dB.
Passivhaus
Eficiencia energética récord

Tecnología
Rotura de puente térmico de 45 mm con espuma

Silencio
Acristalamientos hasta 65 mm

Cortizo COR 80 Industrial
La cima de la evolución de las ventanas de aluminio. Sistema con profundidad de montaje de 80 mm y rotura de puente térmico récord, certificado para construcción de casas pasivas (Passivhaus).
Más Ideas e Inspiración
Estos son algunos ejemplos de nuestro trabajo con el perfil Cortizo COR 80 Industrial. Toda esta inspiración es para usted y solo para usted.
Estamos trabajando en mantener los datos actualizados. Contáctenos si necesita materiales actualizados.
Opciones de Financiación
Disfrute de su compra ahora y páguelo a plazos utilizando nuestros servicios de financiación.
Más detallesNo Olvide Añadir
Elementos adicionales y accesorios que harán su hogar aún más confortable
Mosquiteras
Manillas con Cerradura
Laminación
Elementos Decorativos
Compare con Perfiles Similares
Soluciones alternativas de otros fabricantes
Cortizo COR 60
Cortizo COR 70 Industrial
Cortizo COR 70 Hoja Oculta
Schüco AWS 65
Schüco AWS 75.SI+
Schüco AWS 75 PD.SI
Dejar una reseña
Reseñas de clientes
Descubra lo que la gente dice al respecto
Aún no hay reseñas. ¡Sea el primero!
FAQs
Preguntas Frecuentes sobre Cortizo COR 80 Industrial
¿Realmente el aluminio puede ser más cálido que el plástico?
En el caso del COR 80, sí. Gracias a la rotura de puente térmico de 45 mm y las inserciones especiales de material espumado, este sistema supera en aislamiento térmico a las ventanas estándar de PVC de 70 milímetros. Es una obra maestra tecnológica que combina la resistencia del metal y el calor del plástico.
¿Es necesario un sistema tan cálido en el clima de España?
Sí, si valora el confort y el ahorro. En verano, este aislamiento funciona como un potente escudo contra el calor, conservando el frescor del aire acondicionado en el interior. En invierno, elimina el "efecto de pared fría" junto a la ventana. Además, es el estándar del futuro que aumenta el valor de su propiedad.
¿Cuál es la particularidad del diseño Industrial?
La línea Industrial se distingue por la ausencia total de redondeos. Los junquillos, el marco y la hoja tienen ángulos rectos y aristas definidas. Esto crea un aspecto riguroso y arquitectónico que combina perfectamente con fachadas modernas, hormigón, piedra y metal.
¿Para qué sirve una profundidad de perfil de 80 mm?
La profundidad de 80 mm es necesaria para alojar una amplia rotura de puente térmico y garantizar la rigidez estática. Esto permite fabricar hojas de mayor tamaño y peso que en sistemas más estrechos, sin riesgo de deformación por el viento o por su propio peso.
¿Qué nivel de seguridad tiene este sistema?
COR 80 pertenece a la categoría premium también en seguridad. El perfil permite instalar vidrios blindados y herraje de máxima clase antirrobo (hasta RC3). Es una auténtica caja fuerte con vidrio que protegerá el hogar no solo del clima, sino también de los intrusos.
¿Ayudará esta ventana contra el ruido de un aeropuerto?
Sin duda. La posibilidad de instalar acristalamientos de 65 mm permite utilizar composiciones acústicas especiales de vidrios con diferentes espesores y láminas. En combinación con las tres juntas de sellado, esto reduce el ruido en 46 dB, creando una sensación de silencio absoluto.




















